Zach Reid, Kris Crews and the team at First National are excited to present 4 Oakley Close, Tolga. Positioned on an 840sqm block tucked away towards the end of a quiet cul-de-sac just outside of Town in Tolga, you’ll find this unique three-bedroom split masonry block home.
Stepping inside, you’re immediately greeted by the cathedral ceiling with exposed beams, brick feature walls, and a bright, warm atmosphere. The open-plan kitchen, dining, and lounge areas are serviced by both air-conditioning and a ceiling fan. In the kitchen, behind the brick features, you’ll find ample cabinetry beneath the extended benches and along the walls.
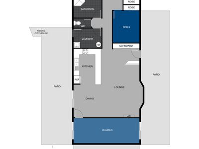
Adjoining this space is the original carport, which has been enclosed to form a second living area or rumpus room. This would make an ideal home office or hobby room, or could alternatively be converted into a fourth bedroom with space for an ensuite.
Three bedrooms with built-in wardrobes and ceiling fans stand ready for family and guests, with the master and larger second bedroom also enjoying their own air-conditioning. These bedrooms are serviced by a spacious main bathroom featuring a wide, ground-level shower. The flooring throughout the bedrooms and living areas has also been recently updated.
Outside, both east- and west-facing patios are perfect for outdoor entertaining and relaxing, while the carport is conveniently connected to the home via footpaths and the driveway.
Features Include
• 840sqm block in a quiet cul-de-sac
• Solid split masonry block construction
• Cathedral ceilings with exposed beams
• Red brick feature walls
• Second living area or rumpus room
• Three bedrooms with ceiling fans and built-ins
• Air-conditioning in the master, second bedroom, and living area
• Front and rear patios
• Undercover parking
This home offers character, solid construction, and close proximity to both Tolga and Atherton. From Zach Reid, Kris Crews and the team at First National, we look forward to seeing you at the open home.
Features
- Air Conditioning
- Outdoor Entertainment Area
- Broadband Internet Available
- Built-in Wardrobes





























